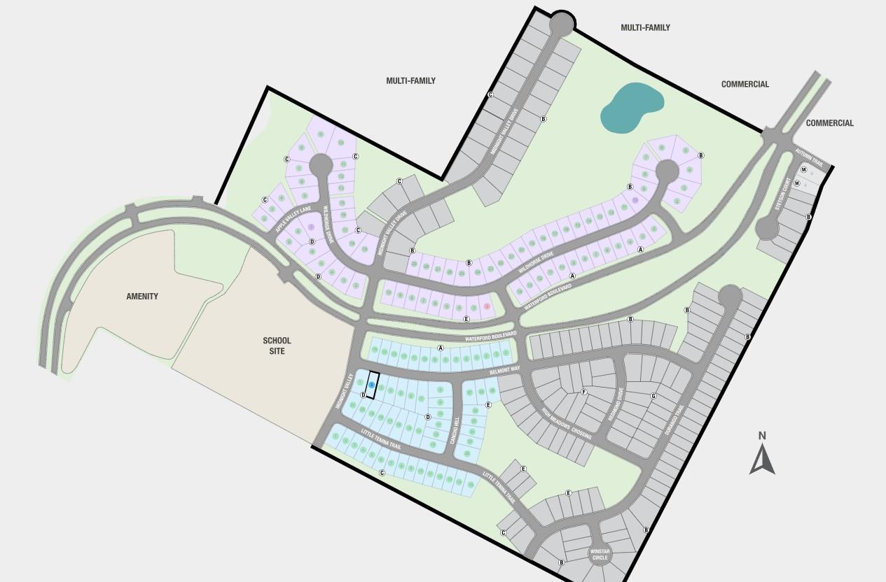
231 Belmont WAYBastrop, TX 78602




Mortgage Calculator
Monthly Payment (Est.)
$2,187What's Special: Model Plan | Dedicated Study | Game Room | Covered Patio | North Facing Lot. New Construction - July Completion! Built by Taylor Morrison, America's Most Trusted Home Builder. Welcome to the Burnet at 231 Belmont Way in Silverleaf! Step inside your new home and enjoy an open concept living space filled with natural light. From the welcoming front porch, enter a sweeping foyer that leads to a dedicated study, two secondary bedrooms, and a game room near the front. At the heart of the home, the kitchen with a center island flows seamlessly into the casual dining area and great room, creating the perfect space for gathering. Tucked at the back is a serene primary suite with a spa-like bathroom featuring two vanities, a soaking tub, a spacious shower, and a large walk-in closet. This community is perfectly positioned between Austin and Bastrop, offering scenic Hill Country views and spacious homes. Zoned to Cedar Creek schools, students can thrive in academics and beyond. Enjoy resort-style amenities including a pool, trails, playgrounds, and the connected feel of a master-planned neighborhood. Commuting is easy with quick access to Austin-Bergstrom International Airport and vibrant Downtown Austin. Spend weekends at Hyatt Lost Pines Golf Course or explore nature at McKinney Roughs Nature Park. Families will appreciate the planned on-site elementary school along with Creekside Middle School and Cedar Creek High School. Additional highlights include: game room, and gas line at the back patio. Photos are for representative purposes only.
| 2 days ago | Listing first seen on site | |
| 2 days ago | Listing updated with changes from the MLS® |
All information provided is deemed reliable but is not guaranteed and should be independently verified. Listings courtesy of ACTRIS as distributed by MLS GRID. The Austin Board of REALTORS®, ACTRIS and their affiliates provide the MLS and all content therein "AS IS" and without any warranty, express or implied.
Last checked - 2026-01-15 08:03 PM CST
REQUIRED DMCA NOTICE Member Participant’s IDX site must comply with The Digital Millennium Copyright Act of 1998 by including appropriate notification instructions to users. A Vendor or Member Participant that receives a DMCA notice of infringement must immediately (no later than 24 hours after receipt) notify MLS GRID at DMCAnotice@MLSGrid.com. A Member Participant’s IDX site must include the conspicuous display of the following two paragraphs: The Digital Millennium Copyright Act of 1998, 17 U.S.C. § 512 (the “DMCA”) provides recourse for copyright owners who believe that material appearing on the Internet infringes their rights under U.S. copyright law. If you believe in good faith that any content or material made available in connection with our website or services infringes your copyright, you (or your agent) may send us a notice requesting that the content or material be removed, or access to it blocked. Notices must be sent in writing by email to DMCAnotice@MLSGrid.com. “The DMCA requires that your notice of alleged copyright infringement include the following information: (1) description of the copyrighted work that is the subject of claimed infringement; (2) description of the alleged infringing content and information sufficient to permit us to locate the content; (3) contact information for you, including your address, telephone number and email address; (4) a statement by you that you have a good faith belief that the content in the manner complained of is not authorized by the copyright owner, or its agent, or by the operation of any law; (5) a statement by you, signed under penalty of perjury, that the information in the notification is accurate and that you have the authority to enforce the copyrights that are claimed to be infringed; and (6) a physical or electronic signature of the copyright owner or a person authorized to act on the copyright owner’s behalf. Failure to include all of the above information may result in the delay of the processing of your complaint.
Did you know? You can invite friends and family to your search. They can join your search, rate and discuss listings with you.